издательская группа
Восточно-Сибирская правда

Расставили точки на карте

Будущим посёлкам в пригороде Иркутска выбрали названия

  • Автор: Лариса ШЕЛЕХОВА

Проекты массового строительства жилья, которые реализует ЗАО «СибирьЭнергоТрейд», объединятся под брендом «ЭкоЭнергоГрад». Каждый из пяти посёлков помимо этого получит собственный логотип и название. В Пивоварихе будет построен жилой микрорайон «Ушаковский», в Новолисихе – жилой район «Парковый», а в Патронах – коттеджный посёлок «Династия». Площадку в Бурдаковке было решено поделить между коттеджными посёлками «Журавли» и «Байкальская Ривьера». Открыть предварительную продажу жилья застройщик планирует в марте 2013 года, а ввести первые квадратные метры в эксплуатацию – в ноябре. Смелые сроки, считают в «СибирьЭнергоТрейде», основаны на опережающих темпах работы этого года: компании удалось разработать градостроительную документацию и приступить к сооружению инфраструктуры на вверенных участках.

Главный принцип

За год работы «СибирьЭнергоТрейд» («дочка» «Иркутскэнерго») успел перейти от маркетинговой концепции застройки участков в пригороде Иркутске к реальным проектам планировок этих территорий, рассказала директор компании Юлия Долгополова. Общественные слушания состоялись по всем четырём территориям, а для  объекта в Патронах проект планировки уже утверждён. В Фонде РЖС проходят согласования аналогичные документы по участкам в Пивоварихе, Новолисихе, Бурдаковке. Согласно им, на арендованных землях будет возведено 530 тыс. кв. метров малоэтажного жилья, в том числе  473 тыс. кв. метров эконом-класса (сопоставимо с годовым вводом жилья в Иркутской области).

Объединить участки, находящиеся в разной удалённости от города, застройщик решил под брендом «ЭкоЭнергоГрад». «Название  выбирали всем миром: проводили анкетирование, опрос работников, консультировались с московскими коллегами, – рассказала Юлия Долгополова. – В итоге за основу взяли  «экологичность» –  принцип строительства, «энерго» – принадлежность к нашей компании и «град» – это, по сути, новый город, который мы будем возводить».  Бренд, по опыту аналогичных проектов в других регионах, может быть изображён на указателе вместе с логотипом и названием конкретной местности.  Пивовариху было решено обозначить как жилой микрорайон «Ушаковский». Площадка в Новолисихе превратится в жилой район «Парковый». В Патронах расположится коттеджный посёлок «Династия». А Бурдаковка разделится на две части – коттеджные посёлки «Журавли» (эконом-класс) и «Байкальская Ривьера» (посёлок морского типа с жильём самого высокого класса  и стоянкой для яхт).

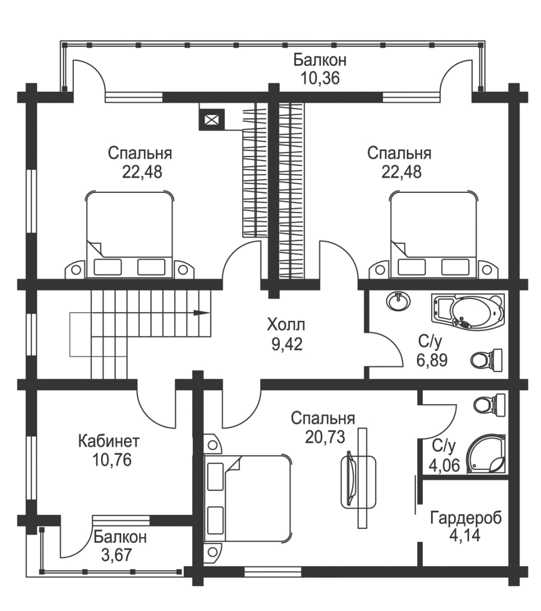
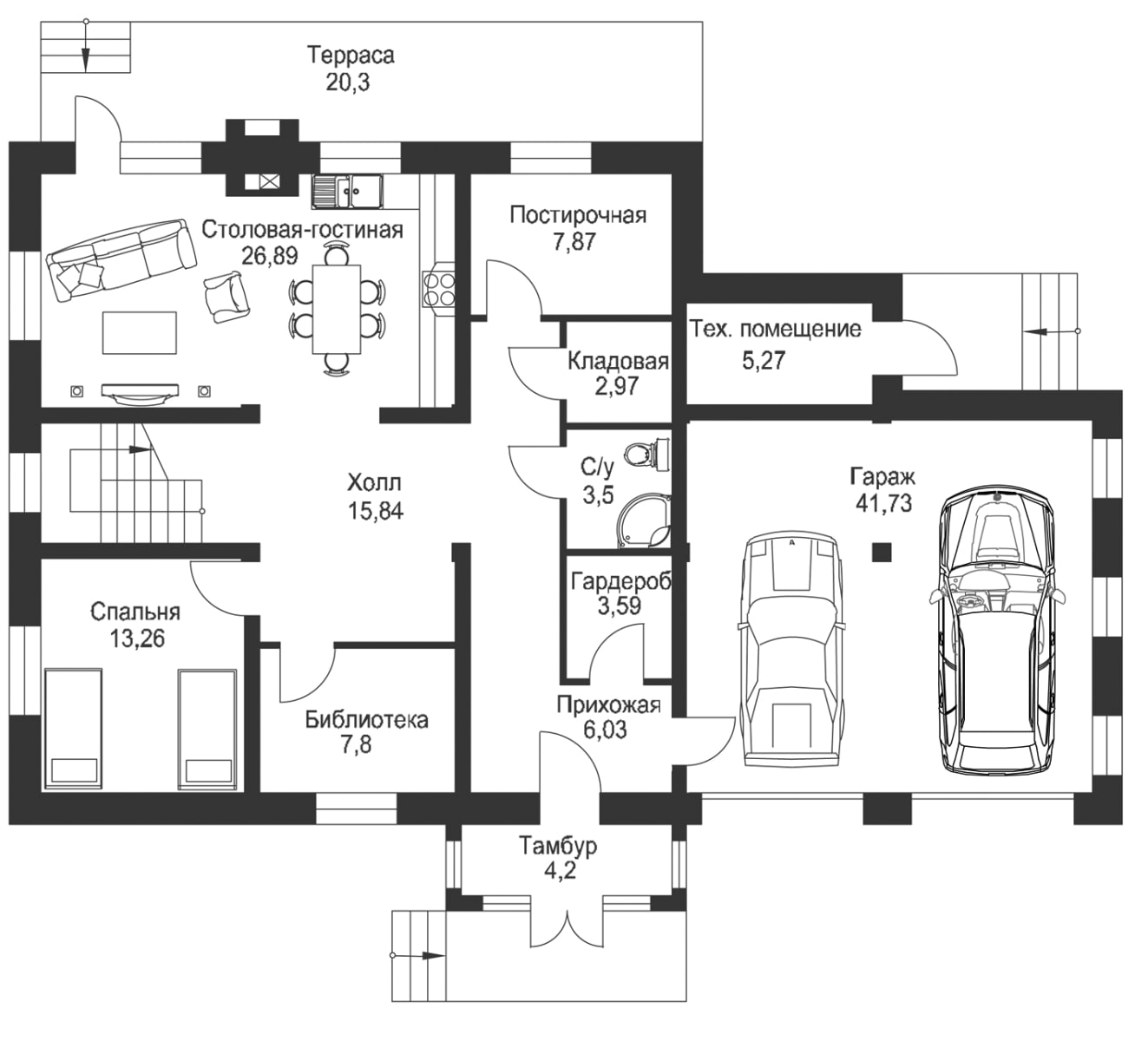
«Получились хорошие планировки»

Основой «Ушаковского» (Пивовариха) остаются многоквартирные трёхэтажные дома. «Без мансард и подвалов, всё по закону», – подчеркнула руководитель проекта. Именно в таких объектах будут наиболее доступные варианты квартир площадью 30–47 кв. метров. В «Ушаковском» также запланировано строительство таунхаусов по  80 квадратов. «Очень интересные планировки. Буквально в два этажа удалось уместить всё необходимое: три комнаты, гостиную, кухню, гардеробную, санузлы. Так что в  экономичном сегменте у нас получились хорошие планировки с достойными площадями», – отметила Долгополова.  В жилом районе «Парковый» (Новолисиха) разместятся удобные дуплексы, индивидуальные дома на 80–120 м2 и комфортные многоквартирные трёхэтажки. В «Журавлях» (Бурдаковка) коттеджи по 80 кв. м будут представлять собой двухэтажные дома, где расположатся тамбур, кухня, гостиная, техническое помещение, санузел, гардеробная и четыре комнаты. «В доме такого небольшого размера удалось спроектировать максимальное количество помещений», – отметила глава «СибирьЭнергоТрейда». Она добавила, что проекты домов экономического сегмента выполняет новосибирская компания ООО «Инвестстрой». А коттеджи бизнес-класса разрабатывает иркутская компания «Астэк Инжиниринг».  В «Байкальской Ривьере» (Бурдаковка) планируется построить индивидуальные дома площадью 180–220 квадратов, в «Династии» – 150–180 квадратов. 

Строительные материалы для «ЭкоЭнергоГрада» выберут в ближайшее время: сейчас компания просчитывает возможные варианты. «Для эконом-класса рассматриваем газобетон, который хорошо себя зарекомендовал в разных сегментах. В качестве альтернативы не исключаем кирпич, – отметила Юлия Долгополова. –  Бизнес-часть тоже может быть выполнена из газобетона. Вторые этажи коттеджей, вероятно, будут из более дорогостоящего клеёного бруса». Внутренняя чистовая отделка  во всех посёлках эконом-класса будет выполнена с использованием экономичных материалов – таково условие Фонда РЖС. Однако застройщик  будет предлагать выбор. Если покупатели квартир или коттеджей захотят, то смогут отказаться от отделочных работ. В этом случае компания заключит дополнительное соглашение с клиентом, а стоимость отделки вычтет из цены квадратного метра (ориентировочная расчётная себе-стоимость отделки –  2–2,5 тыс. рублей за квадрат).

Для всех коттеджей предусмотрены приусадебные участки, которые будут огорожены общими невысокими заборами из штакетника. «Разумеется, дальнейшее использование участка – на усмотрение владельца. Вероятно, кто-то захочет баньку, кто-то хозяйственную постройку или гараж поставить. Каждый сможет обустроить по своему усмотрению», – отметила глава застройщика. В «Парковом» (Новолисиха) и «Журавлях» (Бурдаковка) приусадебный участок будет занимать  от 6 до 8 соток (эконом-класс). «Этого достаточно для размещения всего необходимого», – добавила Долгополова. В «Династии»  и «Байкальской Ривьере» предусмотрены участки по 10–15 соток.   

«Проблем не возникает»

В проектирование градостроительной документации, самих домов, а также очистных сооружений застройщик вложил в этом году более 50 млн. рублей. Кроме того, окончены поисково-оценочные работы по организации водозабора на всех четырёх участках. «Результаты показали, что вода очень высокого  качества, практически не требует доочистки, только обеззараживания. Такая степень чистоты характерна для подземных источников. Всё это, конечно, нас обрадовало», – рассказала Долгополова. 

В следующем году застройщику предстоит окончательно решить вопросы инфраструктуры. Эта тема, отметила глава компании, является ключевой для проекта. Компания уже объявила тендер через центральную закупочную комиссию «Иркутскэнерго» на поставку очистных сооружений. После того как участники направят свои коммерческие предложения, «СибирьЭнергоТрейд» определит стоимость оборудования и сделает окончательный выбор – устанавливать локальные очистные или подключаться к централизованному коллектору. «Кроме цены, есть ещё один определяющий фактор: очистные нужно правильно эксплуатировать, чтобы обеспечить должное качество очистки стоков. Если подключиться к коллектору централизованной системы, этих забот можно избежать, – считает Юлия Долгополова. – Когда мы соберём и сравним все варианты по стоимости и другим параметрам, то выберем стратегию дальнейших обсуждений и сам вариант водоотведения». Руководитель проектов добавила, что в «Ушаковском», «Журавлях»  и «Байкальской Ривьере» будут возможны только локальные очистные сооружения. Использование индивидуальных септиков для загородных посёлков в компании не рассматривают.

Возможно, вскоре, помимо привычных указателей, на дорогах в пригороде Иркутска появятся символы новых посёлков «ЭкоЭнергоГрада»

Реализовать инфраструктурные проекты «СибирьЭнергоТрейд» рассчитывает в том числе при поддержке региональных властей, соглашение о сотрудничестве с которыми сейчас готовит «Иркутскэнерго». Такое взаимодействие, считают в компании, даст шанс привлечь федеральные деньги. «У нас была возможность попасть в программу развития Дальнего Востока и Байкальского региона. К сожалению, заявки на первом этапе были отклонены, – рассказала Долгополова. – Но эта программа сейчас пересматривается, и возможность получить федеральные деньги опять актуальна. Кроме того,  есть и другие программы, с которыми надо работать, например «Социальное развитие села», по ней можно привлечь федеральное финансирование  на социальные объекты». Участки под школы и детские сады уже определены. Общий объём инвестиций в их строительство за 9 лет оценивается в 2 млрд. рублей. «Сейчас наступает ответственный момент, когда участки будут переданы Иркутскому району. Нужно заранее планировать финансирование  этих объектов. Мы со своей стороны готовим привязку типовых проектов детских садов и готовы профинансировать разработку проектов школ, чтобы попасть в государственные программы», – отметила Долгополова. 

Ещё один вариант финансирования инфраструктуры – участие в федеральной целевой программе по охране озера Байкал (для строительства локальных очистных). Совместная задача региона и компании – подготовить заявки для участия в этих программах и  успешно пройти эту заявочную кампанию, подчеркнула Юлия Долгополова.  Кроме того, застройщик намерен заявить свои проекты для компенсации части процентной ставки за пользование кредитными средствами по региональной программе «Стимул». «Видим, что область готова поддержать все наши устремления, поскольку сама заинтересована  в реализации проектов и привлечении средств», – заключила Долгополова. 

Своё содействие «СибирьЭнергоТрейду» уже пообещал федеральный Фонд РЖС, собственник участков, арендованных компанией. «После проведения торгов мы с себя ответственности не снимаем, оказываем всяческую поддержку строителям при согласовании документации и в других вопросах», – отметил  руководитель департамента взаимодействия с регионами госкорпорации Олег Войтенко. Его коллега, заместитель руководителя департамента развития инженерной инфраструктуры Фонда РЖС Равиль Алиаскаров, подтвердил, что фонд помогает застройщику в переговорах со сторонними организациями. «Если есть какие-то задержки на разных этапах, мы подключаемся,  проводим совещания с представителями всех сторон и решаем вопросы. У нас существует специальный отдел, который едва ли не еженедельно ведёт мониторинг реализации проектов и сигнализирует, если что-то идёт не так, – отметил Алиаскаров. – Но по четырём участкам «СибирьЭнергоТрейда» таких проблем пока не возникает». 

Сдача на опережение

От готовности инфраструктуры будут зависеть сроки ввода жилья в эксплуатацию. По договору с владельцем земли компания не обязана сдавать дома в 2013 году, однако для себя  «СибирьЭнергоТрейд» уже поставил план идти на опережение и в следующем  году перевыполнить изначально оговорённый объём работ. На подряды компания намерена привлечь сторонние организации. Соответствующий конкурс запланирован на  начало 2013 года. Разыгрываться будут очереди строительства. Всего планируется  9 очередей строительства на все посёлки. Первая очередь включает 49 тыс. кв. метров (Пивовариха – 22 тыс., Бурдаковка – 8 тыс., Новолисиха – 14,5 тыс., Патроны – 5 тыс.). Кроме того, компания задействует собственное подразделение, которое будет выполнять подряды по тем же ценам, что и сторонние организации. Это своеобразная мера контроля и  подстраховки на нештатные ситуации, отметила Долгополова. Подразделение, по её словам, будет формироваться на базе  «Спецэнергоремонта».

Первые квадратные метры ориентировочно могут быть готовы к ноябрю 2013 года. Все четыре участка предполагается застраивать одновременно. «Но, вероятно, «Ушаковский»  не будет первым районом, где начнёт сдаваться жильё, поскольку это наиболее сложный участок с точки зрения энерго- и водоснабжения: там предусматриваем сети тепловые, водоснабжения и канализации. Фактически это городской микрорайон с населением около 8 тысяч человек, который должен будет иметь максимально централизованную инфраструктуру», – отметила Долгополова.

Продажи в «ЭкоЭнергоГраде» планируется открыть в первом квартале 2013 года, причём сначала среди внутренних подразделений «Иркутскэнерго». Компания исследовала спрос и получила около тысячи заявок на жильё. «Предварительная оценка будет уточняться по мере появления проектов  и точных цен. Но уже можно говорить, что для начала продаж у нас достаточно внутреннего спроса, – полагает Юлия Долгополова. – Это не значит, что никому другому продавать жильё не будем. Просто хотим отработать процедуру, чтобы она была гладкая, комфортная для клиентов». Заключать сделки с клиентами извне застройщик планирует после месяца работы в «тестовом режиме». Схемы предполагаются разные: можно будет приобрести готовое жильё в многоквартирных домах по договору купли-продажи либо купить строящийся коттедж по инвестиционному договору (форма разрешена для индивидуальных домов). Приобретение будет возможно и по договорам долевого участия. Под старт продаж в «СибирьЭнергоТрейде» готовятся увеличить штат, который в будущем будет консультировать покупателей прямо в строящихся посёлках. На каждом участке планируется сделать выставочные дома, где можно будет посмотреть планировку жилья, отделку, расположение, получить консультацию. 

На самый главный вопрос покупателя «Сколько будет стоить жильё?» в «СибирьЭнергоТрейде» готовятся ответить также в пользу клиентов. По словам Долгополовой, застройщик намерен приблизиться к цене, которую устанавливает Минрегионразвития. Для  Иркутской области сейчас она составляет в среднем 33,8 тыс. рублей за квадрат. В «ЭкоЭнергоГраде» «вилка» цены будет обратно пропорциональна площади: чем больше квадратов, тем ниже стоимость. Ориентировочная себестоимость для таунхаусов и коттеджей эконом-класса – 25–27  тыс. рублей за квадрат, а для квартир – 31–33 тыс. рублей. Для бизнес-класса – 37–42 тыс. рублей.

Объёмы работы, которые ещё предстоит выполнить по проектам, застройщика не пугают, заверила Долгополова. «За истекший год мы убедились, что способны самостоятельно реализовать их, – отметила она. – Очень многое успели за это время: разобрались в вопросе, увидели пути решений проблем с инфраструктурой». Руководитель проектов добавила, что «на проекты работает не только «СибирьЭнергоТрейд», но и вся исполнительная дирекция «Иркутскэнерго», от вклада подразделений которого зависят сроки строительства и успех всей идеи». «Мы пользуемся этой поддержкой и очень благодарны за неё», – резюмировала она.

Читайте также

Подпишитесь на свежие новости

Фоторепортажи
Мнение
Проекты и партнеры